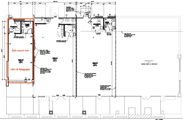
1421 N Telegraph Suite D, Monroe, MI
Retail for Lease - $23 SqFt/Year
Agent Info
| Cole McNew Coldwell Banker Commercial Haynes Real Estate |
Property Info
| CIMLS# | 489159 |
| Location 1421 N Telegraph Suite D Monroe MI 48161 | |
| Updated | August 26th, 2025 |
| Type | Retail |
| Price | $23 SqFt/Year |
Property Description
Renovated shopping center with high visibility and a traffic count of 30,000 vehicles per day, located on US-24 just south of Stewart Rd. This property is strategically positioned in a prime location, central to a diverse range of popular franchises and national retailers. These include well-known names such as McDonald's, Wendy's, Burger King, Arby's, Big Lots, Harbor Freight, Culver's, Dairy Queen, Taco Bell, Chipotle, Qdoba, Meijer, and many others. This is an excellent opportunity for businesses looking to establish a presence in a high-traffic area with a strong consumer base. This is a triple net lease. Taxes to be determined.



