202 NE Loop 289, Lubbock, TX
Industrial for Lease - 86,665 SqFt Available
Agent Info
| Jef Conn |
Property Info
| CIMLS# | 490669 |
| Location 202 NE Loop 289 Lubbock TX 79403 | |
| Updated | April 20th, 2026 |
| Type | Industrial |
| Price | Upon Request |
| Building | 86,665 SqFt |
Property Description
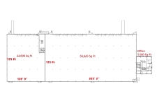
This building is currently under construction. Available space from 23,000 - 86,665 sq ft available. This dock high building will be a Class A Industrial property once complete. Contact broker to discuss your specific needs and how it can fit into your business needs. The landlord is flexible and can help create whatever is needed for your space. 32 Ft Clear Height and up to 24 dock doors available.



