201 N 3rd Street, Clinton, IA
Others for Sale - $65,000 - 1,980 Sq. Ft. on 0.1 acres
Agent Info
| Monica Laufenberg Coldwell Banker Howes & Jefferies |
Property Info
| CIMLS# | 1183046 |
| Location 201 N 3rd Street Clinton IA 52732 | |
| Updated | October 22nd, 2025 |
| Type | Others |
| Price | $65,000 |
| Building | 1,980 Sq. Ft. |
| Land | 0.1 acres |
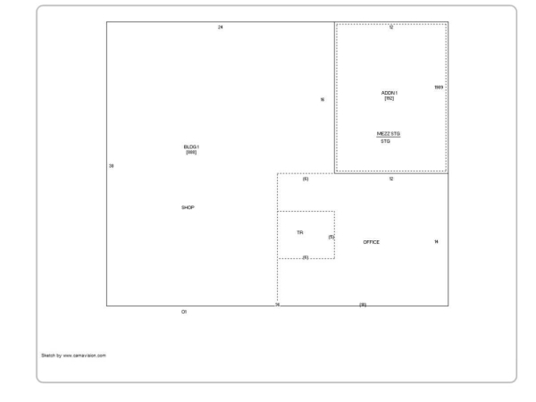
Property Description
GREAT OPPORTUNITY TO OWN A CENTRALLY LOCATED TURN-KEY SERVICE SHOP! Sale includes 201 and 207 North 3rd Street. Metal warehouse addition-post frame 1989. All new metal roof/insulated 2024. Visible signage on high traffic street. Strictly a service station, no underground tanks. Assessor information can be provided detailing the specifics of the great quality of this construction. Shop with three 10'x 10' ft overhead doors and suspended natural gas heater unit. Offers office area, bathroom and a 192 sq ft mezzanine for storage. Includes: hoist, benches, compressor, jack, tire machine and most office equipment/furniture. Can add: release of customers, current owners subscribe to ALLDATA Service and a diagnostic system can be added if new owner chooses the service. Make this your next investment!



